Architekten Badenerstrasse 18 8004 Zürich
mail@trachselhiestand.ch
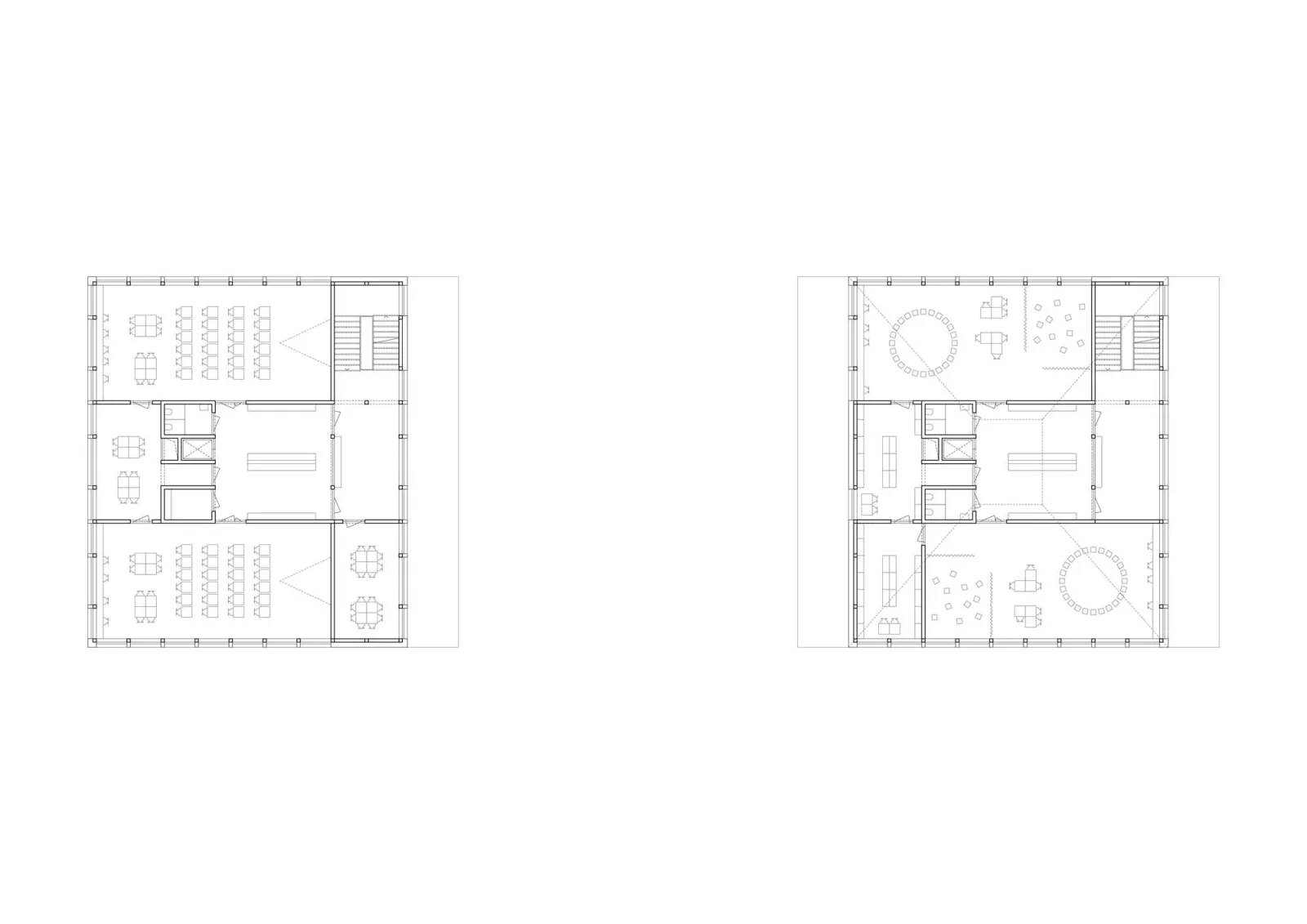
Schulzentrum Münchwilen, Wettbewerb 2018, 4. Rang